Шоссе: Поиск по карте new

Северо-запад

Волоколамское
Ильинское
Новорижское
Пятницкое

Запад

Рублево-Успенское
Минское
Можайское
Сколковское

Юго-запад

Боровское
Калужское
Киевское

Юг

Варшавское
Каширское
Симферопольское

Юго-восток

Егорьевское
Казанское
Новорязанское

Восток

Горьковское
Носовихинское
Щелковское

Север

Алтуфьевское
Дмитровское
Ленинградское
Рогачевское
Осташковское
Ярославское
Новосходненское
Вы можете выбрать сразу несколько шоссе.

Расстояние от МКАД, км:

От: До:

Площадь участка, сот.:

От: До:
Площадь дома, м2:

От: До:

Цена:

От: До:  

Населенный пункт:

Поиск по id:

Шоссе:

Северо-запад

Волоколамское
Ильинское
Новорижское
Пятницкое

Запад

Рублево-Успенское
Минское
Можайское
Сколковское

Юго-запад

Боровское
Калужское
Киевское

Юг

Варшавское
Каширское
Симферопольское

Юго-восток

Егорьевское
Казанское
Новорязанское

Восток

Горьковское
Носовихинское
Щелковское

Север

Алтуфьевское
Дмитровское
Ленинградское
Рогачевское
Осташковское
Ярославское
Новосходненское
Вы можете выбрать сразу несколько шоссе.

Расстояние от МКАД, км:

От: До:

Площадь участка, сот.:

От: До:
Площадь дома, м2:

От: До:

Цена:

От: До:  

Населенный пункт:

Поиск по id:

Расположение:

Станция метро: Карта метро

Авиамоторная
Автозаводская
Академическая
Александровский сад
Алексеевская
Алма-Атинская
Алтуфьево
Андроновка
Аннино
Арбатская
Арбатская
Аэропорт
Бабушкинская
Багратионовская
Балтийская
Баррикадная
Бауманская
Беговая
Белокаменная
Беломорская
Белорусская
Беляево
Бибирево
Библиотека Ленина
Битцевский парк
Борисово
Боровицкая
Боровское шоссе
Ботанический сад
Братиславская
Бульвар Адмирала Ушакова
Бульвар Дмитрия Донского
Бульвар Рокоссовского
Бунинская Аллея
Бутырская
Варшавская
ВДНХ
Верхние котлы
Верхние Лихоборы
Владыкино
Водный стадион
Войковская
Волгоградский проспект
Волжская
Волоколамская
Воробьевы Горы
Выставочная
Выставочный центр
Выхино
Говорово
Деловой центр
Динамо
Дмитровская
Добрынинская
Домодедовская
Достоевская
Дубровка
Жулебино
ЗИЛ
Зорге
Зябликово
Измайлово
Измайловская
Калужская
Кантемировская
Каховская
Каширская
Киевская
Китай-город
Кожуховская
Коломенская
Комсомольская
Коньково
Коптево
Косино
Котельники
Красногвардейская
Краснопресненская
Красносельская
Красные ворота
Крестьянская застава
Кропоткинская
Крылатское
Крымская
Кузнецкий мост
Кузьминки
Кунцевская
Курская
Кутузовская
Ленинский проспект
Лермонтовский проспект
Лесопарковая
Лефортово
Лихоборы
Локомотив
Ломоносовский проспект
Лубянка
Лужники
Лухмановская
Люблино
Марксистская
Марьина роща
Марьино
Маяковская
Медведково
Международная
Менделеевская
Минская
Митино
Мичуринский проспект
Молодежная
Московская Область
Мякинино
Нагатинская
Нагатинская
Нагорная
Нахимовский проспект
Некрасовка
Нижегородская
Новогиреево
Новокосино
Новокузнецкая
Новопеределкино
Новослободская
Новохохловская
Новоясеневская
Новые Черемушки
Озерная
Окружная
Окская
Октябрьская
Октябрьское поле
Ольховая
Орехово
Отрадное
Охотный ряд
Павелецкая
Панфиловская
Парк культуры
Парк Победы
Партизанская
Первомайская
Перово
Петровский Парк
Петровско-Разумовская
Печатники
Пионерская
Планерная
Площадь Гагарина
Площадь Ильича
Площадь Революции
Полежаевская
Полянка
Пражская
Преображенская площадь
Прокшино
Пролетарская
Проспект Вернадского
Проспект Мира
Профсоюзная
Пушкинская
Пятницкое шоссе
Раменки
Рассказовка
Речной вокзал
Рижская
Римская
Ростокино
Румянцево
Рязанский проспект
Савеловская
Саларьево
Свиблово
Севастопольская
Селигерская
Семеновская
Серпуховская
Славянский бульвар
Смоленская
Сокол
Соколиная гора
Сокольники
Солнцево
Спартак
Спортивная
Сретенский бульвар
Старокачаловская ул.
Стахановская
Столбово
Стрешнево
Строгино
Студенческая
Сухаревская
Сходненская
Таганская
Тверская
Театральная
Текстильщики
Телецентр
Теплый стан
Технопарк
Тимирязевская
Третьяковская
Тропарёво
Трубная
Тульская
Тургеневская
Тушинская
Угрешская
Улица 1905 года
Улица Академика Королева
Улица академика Янгеля
Улица Горчакова
Улица Дмитриевского
Улица Милашенкова
Улица Сергея Эйзенштейна
Улица Скобелевская
Улица Старокачаловская
Университет
Филатов луг
Филевский парк
Фили
Фонвизинская
Фрунзенская
Ховрино
Хорошёво
Хорошёвская
Царицыно
Цветной бульвар
ЦСКА
Черкизовская
Чертановская
Чеховская
Чистые пруды
Чкаловская
Шаболовская
Шелепиха
Шипиловская
Шоссе Энтузиастов
Щелковская
Щукинская
Электрозаводская
Юго-Восточная
Юго-Западная
Южная
Ясенево

Улица:

Площадь квартиры ( кв.м.):

Количество комнат:

Цена объекта( млн. руб. ):

Удаленность от метро:

Расположение:

Станция метро: Карта метро

Авиамоторная
Автозаводская
Академическая
Александровский сад
Алексеевская
Алма-Атинская
Алтуфьево
Андроновка
Аннино
Арбатская
Арбатская
Аэропорт
Бабушкинская
Багратионовская
Балтийская
Баррикадная
Бауманская
Беговая
Белокаменная
Беломорская
Белорусская
Беляево
Бибирево
Библиотека Ленина
Битцевский парк
Борисово
Боровицкая
Боровское шоссе
Ботанический сад
Братиславская
Бульвар Адмирала Ушакова
Бульвар Дмитрия Донского
Бульвар Рокоссовского
Бунинская Аллея
Бутырская
Варшавская
ВДНХ
Верхние котлы
Верхние Лихоборы
Владыкино
Водный стадион
Войковская
Волгоградский проспект
Волжская
Волоколамская
Воробьевы Горы
Выставочная
Выставочный центр
Выхино
Говорово
Деловой центр
Динамо
Дмитровская
Добрынинская
Домодедовская
Достоевская
Дубровка
Жулебино
ЗИЛ
Зорге
Зябликово
Измайлово
Измайловская
Калужская
Кантемировская
Каховская
Каширская
Киевская
Китай-город
Кожуховская
Коломенская
Комсомольская
Коньково
Коптево
Косино
Котельники
Красногвардейская
Краснопресненская
Красносельская
Красные ворота
Крестьянская застава
Кропоткинская
Крылатское
Крымская
Кузнецкий мост
Кузьминки
Кунцевская
Курская
Кутузовская
Ленинский проспект
Лермонтовский проспект
Лесопарковая
Лефортово
Лихоборы
Локомотив
Ломоносовский проспект
Лубянка
Лужники
Лухмановская
Люблино
Марксистская
Марьина роща
Марьино
Маяковская
Медведково
Международная
Менделеевская
Минская
Митино
Мичуринский проспект
Молодежная
Московская Область
Мякинино
Нагатинская
Нагатинская
Нагорная
Нахимовский проспект
Некрасовка
Нижегородская
Новогиреево
Новокосино
Новокузнецкая
Новопеределкино
Новослободская
Новохохловская
Новоясеневская
Новые Черемушки
Озерная
Окружная
Окская
Октябрьская
Октябрьское поле
Ольховая
Орехово
Отрадное
Охотный ряд
Павелецкая
Панфиловская
Парк культуры
Парк Победы
Партизанская
Первомайская
Перово
Петровский Парк
Петровско-Разумовская
Печатники
Пионерская
Планерная
Площадь Гагарина
Площадь Ильича
Площадь Революции
Полежаевская
Полянка
Пражская
Преображенская площадь
Прокшино
Пролетарская
Проспект Вернадского
Проспект Мира
Профсоюзная
Пушкинская
Пятницкое шоссе
Раменки
Рассказовка
Речной вокзал
Рижская
Римская
Ростокино
Румянцево
Рязанский проспект
Савеловская
Саларьево
Свиблово
Севастопольская
Селигерская
Семеновская
Серпуховская
Славянский бульвар
Смоленская
Сокол
Соколиная гора
Сокольники
Солнцево
Спартак
Спортивная
Сретенский бульвар
Старокачаловская ул.
Стахановская
Столбово
Стрешнево
Строгино
Студенческая
Сухаревская
Сходненская
Таганская
Тверская
Театральная
Текстильщики
Телецентр
Теплый стан
Технопарк
Тимирязевская
Третьяковская
Тропарёво
Трубная
Тульская
Тургеневская
Тушинская
Угрешская
Улица 1905 года
Улица Академика Королева
Улица академика Янгеля
Улица Горчакова
Улица Дмитриевского
Улица Милашенкова
Улица Сергея Эйзенштейна
Улица Скобелевская
Улица Старокачаловская
Университет
Филатов луг
Филевский парк
Фили
Фонвизинская
Фрунзенская
Ховрино
Хорошёво
Хорошёвская
Царицыно
Цветной бульвар
ЦСКА
Черкизовская
Чертановская
Чеховская
Чистые пруды
Чкаловская
Шаболовская
Шелепиха
Шипиловская
Шоссе Энтузиастов
Щелковская
Щукинская
Электрозаводская
Юго-Восточная
Юго-Западная
Южная
Ясенево

Площадь объекта, м2:

От: До:

Тип недвижимости:

Тип сделки:

Цена (руб.):

От: До:  

Этажность:

От: До:

Уровней от:

От: До:
расширенный фильтр

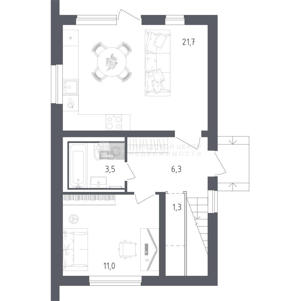
Дом 103.4 кв.м. 5.0 соток , Дмитровское ш., Дмитров г

ID 116 022

19 419 385 руб. RUB
Местоположение:
Московская область  / Московская область
Тип сделки:
Продажа
Площадь участка:
5.0 соток
Площадь дома:
103.4 м2

Описание:

В продаже дом площадью 103,4 м2 на участке 5,03 от Топ-1 застройщика России. Функциональная планировка, панорамные окна и высокие потолки. Все включено: центральные коммуникации и готовая отделка. Территорию обслуживает собственная управляющая компания. Возможно приобретение в ипотеку по 214-ФЗ. Вы ощутите свободу жизни в собственном доме и удобство городской инфраструктуры. Пушкино Дом у воды - это парки, пруд с набережной и леса рядом с домом, а также магазины, кафе, рестораны, коворкинг и хобби-центры. Вся социальная инфраструктура: школы, 4 детских сада, поликлиника.

Расположение:
Населенный пункт:
Дмитров г, Московская область
Участок:
Размер участка:
5.0 (сотки)
Дом:
Метраж дома:
103.4 м2
Количество этажей :
2
Коммуникации:
Электричество:
есть
Газ:
Магистральный газ
Вода:
Центральное водоснабжение
Канализация:
Центральная
Телефон:
нет
Подъезд:
асфальт
Заинтересовались данным объектом?
Позвоните нам +7 (495) 649-86-38, 8-800-555-09-40 (звонок бесплатный) или оставьте заявку на просмотр
Объект на карте:
Контактная информация по объекту 116 022:
Герасимов Геннадий Витальевич
Контактный телефон:
+7 (495) 649-86-38
8-800-555-09-40 (звонок бесплатный)
Электронная почта:
ЗАЯВКА НА ПРОСМОТР
Посмотрите похожие объекты рядом:

Дома в: Дмитров г
Шоссе: Дмитровское
От МКАД: 0 км
Площадь участка: 6.0 (сотки)
Площадь дома: 117.1 м2
17 429 177 руб.

Дома в: Дмитров г
Шоссе: Дмитровское
От МКАД: 0 км
Площадь участка: 5.3 (сотки)
Площадь дома: 117.0 м2
16 858 994 руб.

Дома в: Дмитров г
Шоссе: Дмитровское
От МКАД: 0 км
Площадь участка: 5.1 (сотки)
Площадь дома: 117.1 м2
18 940 596 руб.

Дома в: Дмитров г
Шоссе: Дмитровское
От МКАД: 0 км
Площадь участка: 5.3 (сотки)
Площадь дома: 117.0 м2
17 065 353 руб.

Не нашли подходящий вариант?

+7 (495) 649-86-38
8-800-555-09-40 (звонок бесплатный)

Единый Call-центр